あなたのアーバンライフのお手伝い 山彦グループ
山彦グループ
山彦グループは、大阪市淀川区十三や西中島を中心に不動産の賃貸業を営んでいます。
■
やまびこハイツPart1/2
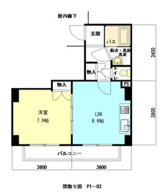
■Part1見取図
■
画像1・2・3
■
画像4・5・6
■
画像7・8・9
■
MAP
■
Part2間取図
■
概要
■
管理会社
□
TOP
□
山彦グループのおいたち
-マンション-
□
やまびこハイツPart1/2
□
メゾン カジサン
-商業ビル-
□
新十三ビルディング
□
野田山彦ビルディング
□
カジサンビル
□
新着情報
○お問合せ○
・
メールはこちら
このページTOP
Copyright© 2012
山彦グループ
All Rights Reserved.